专用小学生校车安全技术条件
中华人民共和国国家质量监督检验检疫总局
中国国家标准化管理委员会 发布
前 言
本标准第4章为强制性的,其余为推荐性的。
本标准参考美国联邦机动车安全标准FMVSS 222:1998《校车乘员座椅及碰撞保护》、FMVSS 111:2004《后视镜》。
本标准实施的过渡期要求:
本标准第4.2条对上部结构强度的规定自2012年1月1日起实施。
本标准附录A为规范性附录、附录B为资料性附录。
请注意本标准的某些内容有可能涉及专利。本标准的发布机构不应承担识别这些专利的责任。
本标准由国家发展和改革委员会提出。
本标准由全国汽车标准化技术委员会(SAC/TC 114)归口。
本标准起草单位:
国家客车质量监督检验中心、中国公路车辆机械有限公司、中国汽车技术研究中心、郑州宇通客车
股份有限公司、东风旅行车有限公司、江苏快乐客车有限公司、南京依维柯汽车有限公司、牡丹汽车股
份有限公司、扬州亚星商用车有限公司、扬州亚星客车股份有限公司、江苏旷达汽车织物集团有限公司。
本标准主要起草人:
李弢、王欣、孙鹰、李维菁、周政平、刘仁喜、张金文、陈涛、胡芳芳、陶荣华、唐京玫、邓玉林、
陆云龙、陈庆娣、徐文健、彭建斌、赵卫丽、蒋玲
专用小学生校车安全技术条件
1 范围
本标准规定了专用小学生校车的安全要求。
本标准适用于专用小学生校车。
2 规范性引用文件
下列文件中的条款通过本标准的引用而成为本标准的条款。凡是注日期的引用文件,其随后所有的修改单(不包括勘误的内容)或修订版均不适用于本标准,然而,鼓励根据本标准达成协议的各方研究是否可使用这些文件的最新版本。凡是不注日期的引用文件,其最新版本适用于本标准。
GB/T 2406 塑料燃烧性能试验方法 氧指数法(GB/T 2406-1993,neq ISO 4589:1984)
GB/T 4780 汽车车身术语
GB/T 5454 纺织品 燃烧性能试验 氧指数法(GB/T 5454-1997,neq ISO 4589:1984)
GB 8410 汽车内饰材料的燃烧特性
GB/T 8627-2007 建筑材料燃烧或分解的烟密度试验方法
GB/T 12428 客车装载质量计算方法
GB 13057 客车座椅及其车辆固定件的强度
GB 13094-2007 客车结构安全要求
GB 14166 机动车成年乘员用安全带和约束系统
GB 14167 汽车安全带安装固定点
GB 15083 汽车座椅、座椅固定装置及头枕强度要求和试验方法
GB 15084 机动车辆后视镜的性能和安装要求
GB/T 17578 客车上部结构强度的规定
GB 18986-2003 轻型客车结构安全要求
GB/T 19056 汽车行驶记录仪
GB XXXXX 专用小学生校车座椅及其车辆固定件的强度
QC/T 633 客车座椅
3 术语和定义
GB/T 4780、GB/T 12428、GB 13094-2007、GB 18986-2003、QC/T 633中确立的以及下列术语和定
义适用于本标准。
3.1
校车 School bus
用于运送不少于5名幼儿园、小学、中学等教育机构的学生及其照管人员上下学的客车和乘用车。按乘坐对象分为幼儿校车、小学生校车和其他校车,按车辆属性分为专用校车和非专用校车。
[GB 7258第2号修改单,定义3.2.10]
3.2
小学生校车 School bus for schoolchildren
运送小学生上下学的校车。
[GB 7258第2号修改单,定义3.2.10.2]
3.3
专用校车 Special school bus
设计和制造上专门用于运送学生的校车。
[GB 7258第2号修改单,定义3.2.10.3]
3.4
专用小学生校车 Special school bus for schoolchildren
设计和制造上专门运送不少于10人的小学生校车。
3.5
护板 Fender 具有防护、装饰作用的板件。
4 要求
4.1 一般要求
4.1.1 防火措施
4.1.1.1 发动机舱、燃油箱、燃油供给系统、电气设备与导线、蓄电池、灭火器应分别符合GB 13094-2007中4.4.1~4.4.6的要求。在排气系统或其它明显的热源周围100mm 内不允许有可燃材料,除非将其有效屏蔽。
4.1.1.2 内饰材料的燃烧性能应满足:
4.1.1.2.1 按GB 8410规定的方法进行试验时,材料的最大水平燃烧速度≤70mm/min。
4.1.1.2.2 内饰材料的氧指数OI≥22%:
a) 针对纺织品及塑料、橡胶类涂附织物,试样应从距离布边1/10幅宽的部位剪取,每个试样的尺寸为150mm×58mm。对因尺寸太小无法按照规定尺寸制样的产品不做此条要求。试验方法按GB/T 5454的规定执行。
b) 其它塑料材料,试样应按照表1规定取样。对因尺寸太小无法按照规定尺寸制样的产品不做此条要求。试验方法按GB/T 2406的规定执行。

4.1.2 安全带
4.1.2.1 每个小学生座位应安装安全带。安全带应符合GB 14166的规定,安全带固定点的强度应满足GB 14167中M2类车辆的要求。
4.1.2.2 如装有能开启每个座位上安全带的集中控制装置,其操纵件应设置在驾驶员可操作范围内,并且该装置在任何情况下均不应影响每个安全带的正常操作功能。
4.1.3 照管人员座位
专用小学生校车(以下简称为“校车”)应至少安装一个照管人员座位,当座位数超过40个时应至少安装两个照管人员座位,照管人员座位的布置应靠近通道,分别位于车辆前部、中部或者后部。照管人员座位应有永久性标识。
4.1.4 行驶记录仪
自撑材料
非自撑材料
4.1.1.2.3 塑料类内饰材料烟密度等级(SDR)≤75,试验方法按GB/T 8627-2007的规定执行。
校车应装有行驶记录仪并满足GB/T 19056的要求。
4.1.5 车窗
校车车窗的固定形式应为下半部分固定,也可为全封闭车窗。
4.1.6 装载质量
小学生的装载质量按48kg(含随身行李)计算,车组人员的装载质量按75kg计算。
4.1.7 其它
车长小于6m的专用校车的车身应为两厢式车身,且一半以上的发动机长度应位于车辆前风窗玻璃最前点以前。双层客车、铰接客车不应作为校车。
4.2 上部结构强度
上部结构强度应符合GB/T 17578的要求。
4.3 座椅
4.3.1 长条座椅(指座垫、靠背均为条形的供两人或多人乘坐的座椅)作为小学生座位使用时,每人座垫宽应不小于350mm;单人座椅座垫宽应不小于400mm。
4.3.2 座椅深应不小于350mm,座垫高应为280mm~380mm(轮罩处的座椅可例外),靠背高度应不小于710mm。
4.3.3 小学生座椅及其车辆固定件应满足GB XXXXX的要求。
4.3.4 小学生座椅应纵向布置(与车辆前进的方向相同)。座椅垫面不应前倾,靠近通道的座椅还应在通道一侧设置平行于椅垫面的座椅扶手,扶手距离座垫为160mm~180mm。
4.3.5 驾驶员座椅和照管人员座椅应分别符合GB 15083和GB 13057 的要求。小学生座椅不应是易折叠的单人座椅。
4.3.6 如果校车上设有协助行动不便和/或使用轮椅的学生的装置,则应符合GB 13094-2007中附录A的要求。
4.4 护板
4.4.1 在座椅R点前方,沿纵向水平方向610mm的范围内没有另一座椅的后表面时,应在该座椅位置前安装护板。护板上缘距地板高度应不小于其后座椅高度,下缘距离地板高度应不大于200mm,宽度应能包括前排此类座椅椅背对应的宽度。
4.4.2 按GB XXXXX规定的座椅前倾试验方法进行试验后,护板应满足:
a) 护板的变形不应妨碍车门正常开关。
b) 护板的任何安装固定点不应脱开。
c) 护板的任何部件不应分离。
4.5 出口
4.5.1 出口的最少数量
为满足紧急情况下的乘员撤离和车外救助,校车出口的最少数量均应符合表2的规定。

4.5.2 乘客门数量
至少应有两个车门,其中至少一个为乘客门。乘客门的最少数量见表3。

4.5.3 撤离舱口数量
4.5.3.1 乘员数小于33人的校车前围和后围应至少有一个出口,否则应设置一个撤离舱口。
4.5.3.2 乘员数不小于33人(含33人)的校车应设撤离舱口。撤离舱口的最少数量见表4。

4.5.4 出口的位置
4.5.4.2 车辆的左侧、右侧至少各有一个出口。
4.5.4.3 乘客区的前半部和后半部应至少各设一个出口。
4.5.4.5 若车顶或地板上设有一个撤离舱口,应位于车辆中部范围内(该范围的长度等于车长的1/2);若设有两个撤离舱口,二者相邻两边之间距离(平行于车辆纵轴线测量)至少2m。
4.5.5 出口的最小尺寸
各种出口的最小尺寸应符合表5的规定。
4.5.4.1 乘客门应设置在车辆右侧或后围。
4.5.4.4 双引道门应计为两个车门,每个双窗或多窗应计为两个应急窗。
4.5.6 技术要求
4.5.6.1 乘客门技术要求
乘客门应符合GB 18986-2003中4.4.4~4.4.5的要求。
4.5.6.2 应急出口技术要求
a) 应急门应符合GB 13094-2007中4.5.6的要求;
b) 乘员数小于33人的校车,应急窗应符合GB 18986-2003中4.4.7的要求;乘员数不小于33人(含33人)的校车,应急窗应符合GB 13094-2007中4.5.7的要求;
c) 撤离舱口应符合GB 13094-2007中4.5.8的要求。
4.5.7 应急出口的开启
应急出口的锁止装置应能从车内和车外手动解锁开启,解锁力和开启力应不超过178N。
4.5.8 应急出口标识
4.5.8.1 每个应急出口处应在车内标示“应急出口”或国际通用符号。
4.5.8.2 乘客门和所有应急出口的应急控制器应在车内用符号或清晰字样标示。
4.5.8.3 在出口的每个应急控制器处或附近,应有关于操作方法的清晰说明。
4.6 车内布置
4.6.1 乘客门引道
4.6.1.1 从乘客门向车内的延伸空间应允许垂直平板1或铅垂平板2(见图1)自由通过。铅垂平板正面的移动方向与乘客出入方向一致。

图1 乘客门引道图示1
4.6.1.2 当垂直平板1(或2)的中心线从起始位置移过300mm,将平板底部接触踏步表面并保持在此位置。
4.6.1.3 用来检查通道空间的圆柱体(见图3)从通道开始沿乘员离开车辆的运动方向移动,直到其中心线达到最上一级踏步外边缘所在的垂直平面或上圆柱接触垂直平板1(或2)(以先出现为准),并保持在此位置(见图2)。

图2 乘客门引道图示2
4.6.1.4 在上述位置的圆柱体同4.6.1.2所述位置的垂直平板1(或2)之间应允许垂直平板3自由通过(见图2)。垂直平板3的形状和尺寸与4.6.5所述的圆柱体的中心截面相同,其厚度不大于20mm。垂直平板3从与圆柱体相切的位置移动到其外侧板面与垂直平板1接触,其底部触及由踏步外边缘形成的平面,移动方向与乘员出入乘客门的方向一致。
4.6.1.5 上述测量装置自由通过的净空间,不应包括前向或后向座椅未压缩座垫前300mm、或安装在轮罩上的座椅前225mm范围内,高度从地板至座垫最高点的空间。
4.6.1.6 折叠座椅应在座椅打开位置时测量。
4.6.1.7 对照管人员专用的折叠座椅,若符合下列要求,则允许在其折叠位置测量:
a) 在车上清楚地标示,此座椅仅供照管人员使用;
b) 座椅不使用时应能自动折叠,以便满足4.6.1.1~4.6.1.5 的要求;
c) 无论该座椅处于使用位置或折叠状态,其任何部位均不应位于驾驶员座椅(处于最后位置时)座垫上表面中心与车外右后视镜中心连线所在的垂直平面的前方。
4.6.1.8 对于最大设计总质量不超过3.5t和乘客座位数不大于18座的校车,如果每个座椅均有可抵达至少2个车门的无阻碍通路,则不必满足4.6.1.1~4.6.1.4、4.6.2.1、4.6.3.1、4.6.7.2的要求。
4.6.1.9 4.6.1.8中的无障碍通路应满足GB 18986-2003中4.5.1.7的要求。
4.6.2 应急门引道
4.6.2.1 应急门引道应符合GB 13094-2007中4.6.2的要求。
4.6.2.2 对4.6.1.8规定的校车,至应急门的通路应符合GB 18986-2003中4.5.1.6的要求。
4.6.3 应急窗的通过性
4.6.3.1 每个应急窗应能满足相应的测试量具从通道经应急窗移到车外。
4.6.3.2 测试量具的运动方向应与乘客从车辆撤出的方向一致,其正面(最大端面)应与运动方向保持垂直。
4.6.3.3 乘员数小于33人的校车,测量器具为一个长轴500mm、短轴(旋转轴)330mm的椭圆体;乘员数不小于33人(含33人)的校车,测试量具应为尺寸为600mm×400mm、圆角半径200mm的薄板,但若应急窗在车辆后围,其尺寸可改为1 400mm×350mm、圆角半径175mm。
4.6.4 撤离舱口的通过性
4.6.4.1 车顶出口
至少一个车顶出口应满足如下可接近性:用侧面与垂面成20°角、高1 600mm(边长不限定)的正四棱台测量:保持棱台轴线垂直,当其上底面位于车顶出口的开口区域内、并且不低于车顶外表面高度处时,其下底面应能接触到座椅或相应的支撑件上。支撑件可以折叠或移动,但应能锁止在其所需使用的位置。
4.6.4.2 地板出口
4.6.4.2.1 地板出口上方应有相当于通道高度(见图4)的净空间,并应满足测试量具(600 mm×400mm、圆角半径200mm的薄板)从地板上方1m的高度处畅通无阻地直接到达地面,通过时板面保持水平。
4.6.4.2.2 任何热源或运动部件距地板出口应不小于500mm。
4.6.5 通道
4.6.5.1 通道应允许测量装置(见图3)自由通过。通过时若同其它柔性物(如座椅安全带)接触,可将其移开。
4.6.5.2 如果座椅前面没有出口,此处的通道应符合GB 13094-2007中4.6.5.2的要求。
4.6.5.3 通道内允许有台阶,台阶顶部的宽度应不小于通道宽度,通道和引道表面应防滑。
4.6.5.4 对于最大设计总质量不超过3.5t和座位数不大于18座的校车,如果每个座椅均有可抵达至少2个车门的无阻碍通路,并满足GB 18986-2003中4.5.1.7的要求,则不需要通道。

图3 通道测量装置
4.6.6 踏步
在校车空载状态下,第一级踏步离地高应不大于350mm,允许使用伸缩踏步达到要求。其他各级踏步的高度应不大于250mm、有效深度(从该台阶前缘到下一个台阶前缘的水平距离)应不小于200mm。
校车的台阶踏板(包括伸缩踏板)应有防滑功能,台阶踏板前缘应清晰可辨。
4.6.7 小学生座位的乘坐空间
4.6.7.1 座间距
4.6.7.1.1 小学生座位的座间距H:小学生座椅靠背的前面与前排座椅靠背后面之间的距离(在座垫上表面最高点所处平面与地板上方620mm高度范围内水平测量,见图4),应不小于550mm。

图4 座椅空间
4.6.7.1.2 所有数据均在通过座位中心线的垂直平面内测量,且座垫和靠背都未被压陷。
4.6.7.2 座位上方的自由空间
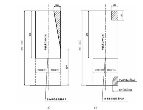
4.6.7.2.1 每个座位均应有一垂直净空间,它是从未压陷座垫的最高点所处平面向上不小于900mm,以及从就座乘客搁脚的地板处向上不小于1 350mm(见图5),对于轮罩处和适用于4.6.1.8的校车,可减为1 200mm。

图5 座位上方的自由空间
4.6.7.2.2 这个净空间应包括下述的全部水平区域:
a)横向区域:对单人座椅,座位中心垂直平面两侧各200mm处的纵向垂直平面之间;对长条座椅,在每个座位中心垂直平面两侧各175mm处的纵向垂直平面之间。
b)纵向区域:通过座椅靠背上部最后点的横向垂直平面和通过未压缩座垫前端向前200mm的横向垂直平面之间。测量在座位中心垂直平面进行。
4.6.7.2.3 该净空间可以不包括下列区域: a) 外侧座椅上方邻靠侧围的横截面为150mm高、100mm宽的矩形区域(见图6b))。
b) 外侧座椅上方邻靠侧围的横截面为一个倒置直角三角形的区域,三角形顶点位于地板上方650mm,底边宽100mm(见图6a))。
c) 外侧座椅的椅脚靠近侧围处,横截面积不超过2×104mm2(低地板客车3×104mm2)、最大宽度不超过100mm(低地板客车150mm)的区域(见图6 b))。

图6 外侧座椅空间的允许侵入
4.6.7.2.4 该净空间应允许另一座椅靠背及其支撑件和附属装置(例如折叠桌)的侵入。
4.7 车内照明
车内照明符合GB 13094-2007中4.7的要求。
4.8 扶手
4.8.1 扶手和把手应有足够的强度。
4.8.2 扶手和把手不应有伤害乘客的危险。
4.8.3 扶手和把手的截面应使乘客易于抓紧,每个扶手的表面应防滑。
4.9 活动盖板
活动盖板应符合GB 13094-2007中4.13的要求。
4.10 视觉娱乐装置
乘客视觉娱乐装置应放在驾驶员正常驾驶位置时的视野以外。
4.11 车厢内通风
如果车厢内不能进行自然通风,应装设强制通风装置。
4.12 驾驶员视野
4.12.1 驾驶员视野应满足附录A的要求。
4.12.2 应保证驾驶员能看清后风窗玻璃后下方地面上长3.6m、宽2.5m 范围内的情况。
4.12.3 驾驶员在正常驾驶状态下应能观察到车内乘员的活动。
4.12.4 检验驾驶员视野的眼点位置的确定应符合GB 15084的规定。
(规范性附录)
驾驶员视野的试验方法
A.1 试验条件
A.1.1 校车应保证驾驶员能看清图A.1所示圆柱体的整个顶面。
A.1.2 圆柱体A~O的高度和直径均为0.3m;圆柱体P的直径为0.3m,高度为0.91m。
A.1.3 圆柱体的颜色应与车辆所停靠路面形成强烈的对比。
A.2 试验步骤
将圆柱体放置在A.2.1~A.2.7规定的位置上,如图A.1所示。图A.1中所示距离为一个圆柱体到另一个圆柱体的俯视图的中心距离。
A.2.1 放置圆柱体G、H和I,使它们与一个横向垂直平面相切,该横向垂直平面是与车辆前保险杠最前方表面相切的平面。放置圆柱体D、E和F,使它们的中心位于一个横向垂直平面内,该横向垂直平面在穿过圆柱体G、H和I中心的横向垂直平面前方1.8m处。放置圆柱体A、B和C,使它们的中心位于一个横向垂直平面内,该横向垂直平面在穿过圆柱体G,H和I中心的横向垂直平面前方3.6m处。
A.2.2 放置圆柱体B、E和H,使它们的中心位于一个纵向垂直平面上,该纵向垂直平面穿过车辆纵向中心线。
A.2.3 放置圆柱体A、D和G,使它们的中心位于一个纵向垂直平面上,该纵向垂直平面与汽车前保险杠左侧最外侧边缘相切。
A.2.4 放置圆柱体C、F和I,使它们的中心位于一个纵向垂直平面上,该纵向垂直平面与汽车前保险杠右侧最外侧边缘相切。
A.2.5 放置圆柱体J,使它的中心在一个纵向垂直平面上,该纵向垂直平面在穿过圆柱体A、D和G的纵垂直平面的左方0.3m处,且J的中心在穿过车辆前轮轴中心线的横向垂直平面上。
A.2.6 放置圆柱体K,使它的中心在一个纵向垂直平面上,该平面穿过圆柱体C、F和I的纵向垂直平面的右方0.3m处,且K的中心在穿过车辆前轮轴中心线的横向垂直平面上。
A.2.7 放置圆柱体L、M、N、O和P,使它们的中心位于通过车辆后轴中心线的横向垂直平面上。放置圆柱体L,使它的中心在距离相切于车辆左边最外侧表面(包括后视镜系统)的纵向垂直平面1.8m的纵向垂直平面上。放置圆柱体M,使它的中心在距离相切于车辆左边最外侧表面的纵向垂直平面0.3m的纵向垂直平面上。放置圆柱体N,使它的中心在距离相切于车辆右边最外侧表面的纵向垂直平面0.3m的纵向垂直平面上。放置圆柱体O,使它的中心在距离相切于车辆右边最外侧表面的纵向垂直平面1.8m的纵向垂直平面上。放置圆柱体P,使它的中心在距离相切于车辆右边最外侧表面的纵向垂直平面3.6m的纵向垂直平面上。

图A.1 视野检验中检验圆柱体的位置
(资料性附录)
参 考 文 献
GB 7258-2004 机动车运行安全技术条件 第2号修改单
1、凡本网注明“来源:www.beltsegypt.com” 的所有作品,版权均属于完美作业网有免费视频,未经本网授权,任何单位及个人不得转载、摘编或以其它方式使用上述作品。已经本网授权使用作品的,应在授权范围内使用,并注明“来源:www.beltsegypt.com”。违反上述声明者,本网将追究其相关法律责任。
2、凡本网注明 “来源:XXX(非完美作业网有免费视频)” 的作品,均转载自其它媒体,转载目的在于传递更多信息,并不代表本网赞同其观点和对其真实性负责。
3、如因作品内容、版权和其它问题需要同本网联系的,请在30日内进行。
※ 有关作品版权事宜请联系:copyright#chinabuses.com
- 每辆补贴4.2-8万元!新能源城市公交及动力电池更新补贴标准出台[09-26]
- 交通运输部:全力做好2024年中秋国庆假期交通运输服务保障[09-13]
- 12城入围!交通部印发2024年城市公交优先发展和绿色出行典型案例[09-13]
- 交通运输部修订印发《汽车客运站安全生产规范》[09-12]
- 六部门组织开展2024年绿色出行宣传月和公交出行宣传周活动[09-06]
- 工信部等八部门:做好老旧新能源城市公交车辆动力电池更换工作[08-21]
- 行业观察|国务院审议通过《城市公共交通条例》将为行业带来哪些利好?[08-20]
- 政策解读|交通部印发《农村客货邮运营服务指南(试行)》的通知[08-16]